De vanzare apartament, 3 camere, decomandat, 80 mp , Galata, Cartier de blocuri noi pe Platoul Galata [154732]

Zona Galata, repere: Cartier de blocuri noi pe Platoul Galata

Anunt cu 22 vizualizari, publicat 31-03-2026, de:
smart value
Oferta Imagine 1
Oferta Imagine 2
Oferta Imagine 3
Oferta Imagine 4
Oferta Imagine 5
Oferta Imagine 6
Oferta Imagine 7
Oferta Imagine 8
Oferta Imagine 9
Oferta Imagine 10
Oferta Imagine 11
Oferta Imagine 12
137.000 Euro mp2
Tip:
decomandat
Suprafata:
80mp
Etaj:
3 din 5
Camere:
3
Bai:
2
Balcoane:
2
An constructie:
2025
Structura:
pe cadre
Acoperis mansardat:
Risc seismic:
Scara:
disponibil prima casa

Specificatii oferta

  • mobilat: nu
  • incalzire: centrala termica
  • termosistem
  • gaz metan
  • apometre
  • parchet
  • gresie + faianta
  • termopan
  • usa metalica
  • cabluTV
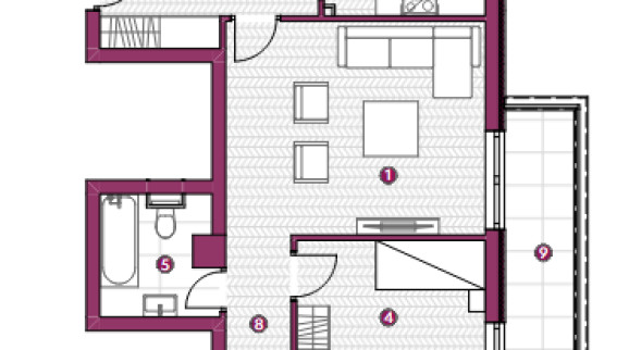
Apartamentul propus spre vanzare este situat in Iasi , zona Galata (Cartier de blocuri noi pe Platoul Galata) si este compus din 3 camere si dependinte. Este de tip D, are o suprafata de 80 mp si este situat la etajul 3 intr-o cladire cu 5 etaje.
Apartamentul are centrala termica de apartament, gaz metan, apometre, parchet, gresie, faianta, tamplarie termopan, termosistem, aer conditionat, usa metalica, cabluTV, geam la baie.
Cladirea , construita in 2025, are o structura tip pe cadre, .
Apartamentul se poate achizitiona prin credit ipotecar prin Programul PRIMA CASA
Consilier Imobiliar: Mihaela Tarnoveanu
Iti place oferta, dar doresti detalii?
Ne poti contacta cu un mesaj direct:
[De vanzare apartament, 3 camere, decomandat, 80 mp , Galata, Cartier de blocuri noi pe Platoul Galata; cod oferta 154732]
Lista Apartamente Noi CTA close banner