4 camere, 105 mp , de vanzare casa in zona Rediu, pe podisul Beldiman [160343]

Zona Rediu, repere: pe podisul Beldiman

Anunt cu 12 vizualizari, publicat 07-04-2026, de:
smart value
Oferta Imagine 1
Oferta Imagine 2
210.000 Euro
Tip:
Vila
An constructie:
Suprafata:
105mp
Suprafata teren:
402mp
Camere:
4
Bai:
2
Bucatarii:
1

Specificatii oferta

  • mobilat: nu
  • incalzire: centrala termica
  • termosistem
  • gaz metan
  • parchet
  • gresie + faianta
  • termopan
  • curte
  • apa
  • parter
  • etaj 1
  • curent electric
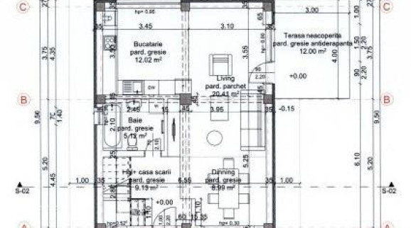
Casa propusa spre vanzare este situata in Iasi , zona Rediu (pe podisul Beldiman) are o suprafata utila de 105 mp pe un teren de 402 mp si este compusa din 4 camere si dependinte.
Planul casei este: P+E1
Casa este construita in 2025, are incalzire prin centrala termica, beneficiaza de urmatoarele utilitati: electricitate, gaz metan, apa curenta, termosistem,
Consilier Imobiliar: Mihaela Tarnoveanu
Iti place oferta, dar doresti detalii?
Ne poti contacta cu un mesaj direct:
[4 camere, 105 mp , de vanzare casa in zona Rediu, pe podisul Beldiman; cod oferta 160343]
Lista Apartamente Noi CTA close banner