De vanzare casa, 4 camere, 160 mp , Valea Adanca, 5 drumuri [158122]

Zona Valea Adanca, repere: 5 drumuri

Anunt cu 12 vizualizari, publicat 06-04-2026, de:
smart value
Oferta Imagine 1
Oferta Imagine 2
Oferta Imagine 3
Oferta Imagine 4
Oferta Imagine 5
Oferta Imagine 6
220.000 Euro
Tip:
Vila
An constructie:
Suprafata:
160mp
Suprafata teren:
500mp
Camere:
4
Bai:
3
Bucatarii:
1

Specificatii oferta

  • mobilat: partial
  • incalzire: centrala termica
  • termosistem
  • gaz metan
  • parchet
  • gresie + faianta
  • termopan
  • curte
  • gradina
  • garaj
  • apa
  • parter
  • etaj 1
  • curent electric
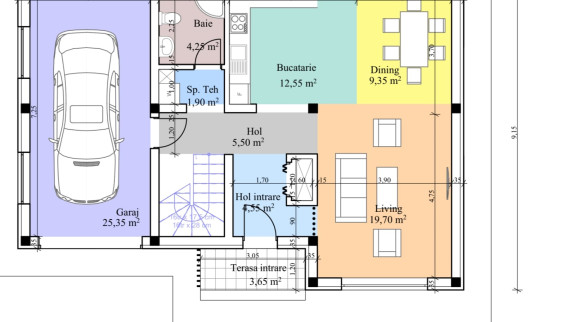
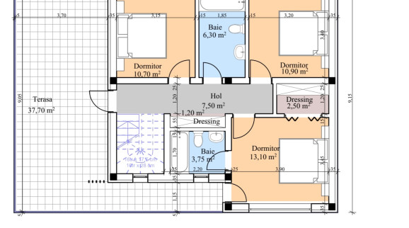
Casa propusa spre vanzare este situata in Iasi , zona Valea Adanca (5 drumuri) are o suprafata utila de 160 mp pe un teren de 500 mp si este compusa din 4 camere si dependinte.
Planul casei este: P+E1
Casa este construita in 2024, este mobilata partial, are incalzire prin centrala termica, beneficiaza de urmatoarele utilitati: electricitate, gaz metan, apa curenta, termosistem,
Consilier Imobiliar: Mihaela Tarnoveanu
Iti place oferta, dar doresti detalii?
Ne poti contacta cu un mesaj direct:
[De vanzare casa, 4 camere, 160 mp , Valea Adanca, 5 drumuri; cod oferta 158122]
Lista Apartamente Noi CTA close banner