Notice: Trying to access array offset on value of type null in /home/interimo/imobilenou.interimobiliare.ro/pages/oferta.php on line 235
Casa de vanzare, 4 camere, 105 mp , Valea Lupului, Iasi ID:161025

Casa de vanzare, 4 camere, 105 mp , Valea Lupului, [161025]

Zona Valea Lupului

Anunt cu 85 vizualizari, publicat 02-03-2026, de:
smart value
Oferta Imagine 1
Oferta Imagine 2
Oferta Imagine 3
Oferta Imagine 4
Oferta Imagine 5
Oferta Imagine 6
210.000 Euro mp2
Tip:
Vila
An constructie:
Suprafata:
105mp
Suprafata teren:
400mp
Camere:
4
Bai:
2
Bucatarii:
1

Specificatii oferta

  • mobilat: nu
  • incalzire: centrala termica
  • termosistem
  • gaz metan
  • parchet
  • gresie + faianta
  • termopan
  • usa metalica
  • cabluTV
  • curte
  • gradina
  • apa
  • parter
  • etaj 1
  • curent electric
  • cale access: Drum de pamant
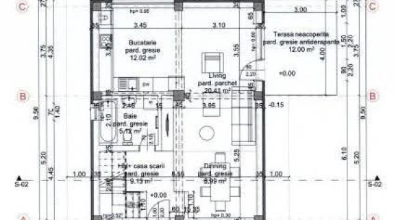
Casa propusa spre vanzare este situata in Iasi , zona Valea Lupului are o suprafata utila de 105 mp pe un teren de 400 mp si este compusa din 4 camere si dependinte.
Planul casei este: P+E1
Casa este construita in 2025, are incalzire prin centrala termica, beneficiaza de urmatoarele utilitati: electricitate, gaz metan, apa curenta, termosistem,
Consilier Imobiliar: Mihaela Tarnoveanu
Iti place oferta, dar doresti detalii?
Ne poti contacta cu un mesaj direct:
[Casa de vanzare, 4 camere, 105 mp , Valea Lupului, ; cod oferta 161025]
Lista Apartamente Noi CTA close banner